銀行業務庫生產工藝技術要求:
1.銀行業務庫庫門執行標準 公安部 GAT143 A 級標準,配備安全重鎖裝置。
2.銀行業務庫庫體厚度>250mm,參考圖三,執行標準公安部 GAT143 M 級。
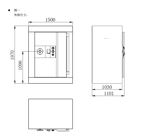
3.銀行業務庫庫體外形尺寸參考圖一。
4.銀行業務庫庫門門鎖、轉輪等尺寸位置參考圖二。
5.銀行業務庫庫內層架可調,同時滿足承重>100KG,層架板的螺絲孔位與尺寸
參考我司提供的 3D 圖紙,層架排布參考圖五圖六。
6.銀行業務庫庫內有效尺寸見圖四,庫內安裝要求見我司提供的 3D 圖紙。
7.銀行業務庫庫門與庫體之間要有走線管,有效管徑大于 10mm,壽命大于 1.5
萬次開關門。
8.銀行業務庫庫外進出線孔左右各使用 4 組 DN32,外徑 42.4mm,壁厚 3.5mm。
9.銀行業務庫庫內布線線管使用 DN32 規格,同時明線設置可拆蓋方式過線槽。
10.除金庫門,其余上板、底板、背板、左右側板需要拆件分塊處理,
拆件滿足易安裝易運輸,組裝后的庫體滿足公安部 GAT143 M 級要求,
拆件后的圖紙需我司確認。
11.底部無需地腳或者其他臺階支撐。
12.整體外形處理工藝參考我司外觀效果圖。焊接美觀,無明顯外觀
缺陷,如油污,焊斑,劃傷等外觀缺陷,如有異議雙方共同協商確認。
13.表面裝飾所用的不銹鋼板材按壓無明顯變形,材料厚度大于
1.5mm,材質為不銹鋼304。
銀行業務庫外形結構參考圖一:

銀行業務庫尺寸位置參考圖二:
:
銀行業務庫結構厚度標準參考圖三:

銀行業務庫有效尺寸參考圖四:

銀行業務庫庫內層板位置參考圖五:








客服QQ:38219871